Have you ever wondered what it's like inside a Hallberg-Rassy sailboat? 

Step aboard our 1989 Hallberg-Rassy 42E, 'Asterie' for a full walkthrough. She's a true bluewater cruiser built for serious offshore sailing. See the layout, features, and liveaboard setup that make this boat a classic and excellent for sailing families.

Whether you're dreaming of full-time cruising or just curious about what a classic Hallberg-Rassy offers, this tour gives you a detailed look at what makes this 42-footer so special.

Welcome Aboard Our 1989 Hallberg-Rassy 42E

We're very happy to have you here!

Come onboard our Hallberg-Rassy 42E and watch our YouTube video for a full walkthrough of 'Asterie's' interior to see what it's like below decks. 

It will give you a good idea of the space that's down below and what it's like to live onboard a blue water cruising yacht.

She felt like a cosy log cabin to us and was incredibly easy to live on (we did for a few years without a break!)

Why we chose a Hallberg-Rassy 42E

'Asterie' was our home for three years. We upgraded to her from our first boat - a 1974 Dufour 34 - after we got pregnant and realised we wanted a second bedroom and a bit more space. 

We planned to sail long distances and wanted safety and comfort while we were doing that, especially as we'd have a little one onboard. 

To ensure we bought the right boat for us, we viewed a lot of boats and quickly dismissed all the others as either the layout didn't work for us, or parts were breaking during the viewings (which doesn't exactly fill you with confidence, knowing how rough the seas can be out there). 

There's just something about a Hallberg-Rassy that instils confidence in you, and we weren't disappointed. 

From an encapsulated medium-sized keel and skeg hung rudder, to a well-protected cockpit, really good water and fuel tank sizes, a solid build quality, and a good-sized separate shower in the heads - these were all features we loved.

The layout worked well for us, and we were very comfortable onboard. There was even space for a pram and lots of other baby paraphernalia onboard (although we did have to sacrifice one of the heads for this!)

Last but not least, the reputation of Hallberg-Rassy yachts is legendary. We knew we were buying a strong, well-built sailboat capable of coping with whatever the sea could throw at her (we always broke well before she did!) 

What's the Specification of our Hallberg-Rassy 42E?

Make: Hallberg-Rassy
Model: 42E
Year: 1989
Boat Name: Asterie
Hull Number: 227
Style: Centre Cockpit
Type: Sailing Cruiser
Rig: Sloop
Condition: Used
Hull Material: Fibreglass (GRP)
Number of Engines: 1
Fuel Type: Diesel
LOA: 12.93m / 42’ 5”
LWL: 10.50m / 34’ 5”
Beam: 3.78m / 12’ 4”
Draft: 2.05m / 6’ 8”
Displacement Weight: 11,500 kg / 25,353 lbs
Keel Weight: 4,500 kg / 9,920 lbs
Keel Type: Encapsulated Long Fin Keel
Accommodation: 8 berths in 3 cabins

What Engine Did We Have Onboard?

Engine Make: Beta Marine
Engine Model: V3600-ET02
Primary Engine: Inboard
Drive Type: Shaft Drive
Year: 2011
Hours: 1092
Power: 75hp
Propellor Type: 3 blade
Propellor Material: Bronze
Rope Cutter: Yes
Cruising Speed: 8 knots (1500 rpm)
Maximum Speed: 9 knots (2500 rpm)

2011 Beta Marine 75 hp engine

2011 Beta Marine 75 hp engine

How Big Are the Tanks Onboard?

Fuel: 395 litres / 87 gallons (1 x 250 litres and 1 x 145 litres) - stainless steel
Water: 725 litres / 161 gallons - GRP
Holding Tank: 40 litres / 8.8 gallons - stainless steel - forward heads only

When we lived at anchor, we could make the water in the tanks last for around three weeks at a time (if we were being careful!)

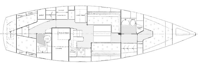
What's the Layout of the Hallberg-Rassy 42E?

HR42E sail plan sloop

Image: hallberg-rassy.com

HR42E side view

Image: hallberg-rassy.com

HR42E interior drawing

Image: hallberg-rassy.com

There were two bedrooms, two heads, a good-sized galley, a comfortable sitting area (which could entertain a number of people), a chart table, a double wardrobe, and a separate engine room. There was also plenty of locker space throughout for belongings. 

What Was There Above Decks?

Now for the photo tour! 

25kg Rocna anchor (new 2019), 60m of 3/8 chain & 30m Nylon 20mm warp
Danforth anchor
45lb CQR anchor
Electric Lofrans 1000 watt anchor windlass
Electric Primary Genoa Sheet Winches (2017) – New Genoa Sheets (2020)
2 x Lewmar 55 electric winches (cockpit: headsail sheets)
7 x Lewmar 40 manual winches (cockpit: 2 x main sheet, 1 x mainsail, 2 x just behind cockpit for cruising chute; mast: x2 for various halyards)
Electric In-Mast Furling System (2018)
Vetus Bow Thruster with foot controls at helm
Boom Car Replaced & Upgraded
Reinforced King Post
Cockpit Clutches (all replaced 2018)
6 x Stainless Steel Deck Cleats
Lewmar Piston Powered Vang (2017)
Warps
Fenders
Boathook
Bespoke Stainless Steel & Teak Bathing Platform (2015/16)
Stainless Steel Boarding Ladder (2015/16)
Outboard Engine Bracket
Stainless Steel Bimini Frame with Blue Canvas Bimini Cover (2015)
Fully Enclosed Blue Canvas Cockpit Tent with Stainless Steel Frame

At the mast of a Hallberg-Rassy 42E looking towards the bow

At the mast looking towards the bow

At the bow of a Hallberg-Rassy 42E looking aft

At the bow looking aft

At the stern of a Hallberg-Rassy 42E looking forwards

At the stern looking forwards

Spars and Sails

Electric In-Mast Furling System (2018)
Seldon Genoa Furling System (2018)
Jeckells Genoa (2019)
Jeckells In-Mast Furling Main (2019)
Cruising Chute with Snuffer & Sheets (excellent condition)
Storm Jib (Hood – 1989)
10mm Stainless Steel Standard Rigging (2014)
Sta-Lok Fittings & Backstay Tensioner
Cutter Stay for Storm Jib
Spinnaker Pole

Asterie's in-mast furling mainsail

Asterie's in-mast furling mainsail

Asterie's cruising chute

Asterie's cruising chute

Navigation Equipment

Navigation Lights (port and starboard bow lights new 2021)
C. Plath Steering Compass
Raymarine E120 Chart Plotter with Integrated Radar
Raymarine AIS 650 Transponder/Receiver
Raymarine ST70 Auto-pilot and Smart Wireless Controller
Raymarine ST60+ Compass
Raymarine ST70 Multi Function Display (log, speed, depth)
Raymarine ST60+ Wind Instrument
ICOM Radio – IC M506 with Dual Station (Chart Table & Cockpit)
Radar
Weather Station
McMurdo ICS NAV6 Navtex
Saloon Bulkhead Plastimo Compass
Various Paper Charts

At the helm looking at the instruments in the cockpit

At the helm looking at the instruments in the cockpit

Raymarine E120 Chart Plotter with Integrated Radar

Raymarine E120 Chart Plotter with Integrated Radar

The chart plotter wasn't always reliable (as you can see from the picture above!) as the charts needed updating, so we used it in conjunction with Navionics on our iPads. 

Safety Equipment

Zodiac 6 Person RORC Liferaft with Solas HRU Release
McMurdo SmartFind Plus 406 GPS EPIRB
Offshore Flare Pack
Electric Bilge Pump
2 Manual Bilge Pumps
2 x Lifebuoys
Danbuoy
Jonbuoy
Fog Horn
5 Wichard Cockpit Clip-On Points
Guardwire and Jackstays
4 x Fire Extinguishers
1 x Engine Room Auto Fire Extinguisher
1 x Fire Blanket
Carbon Monoxide Alarms

Offshore Flare Pack

Offshore Flare Pack

Zodiac 6 Person RORC Liferaft with Solas HRU Release

Zodiac 6 Person RORC Liferaft with Solas HRU Release

Power

6 x 12v 110ah AGM Batteries (2018)
2 x 12v 110ah Engine Batteries
Silentwind PRO Marine Wind Turbine (2020)
320 w (2 x 160w) Solar Panels (2020)
Victron MPPT BlueSolar Charge Controller with Bluetooth for monitoring (2020)
Silentwind Wind and Solar Hybrid Charge Controller (2020)
Victron Pure Sinewave Phoenix 12 | 800 Inverter (2020)
Battery Monitor (2020)
Battery Charger
240v Shore Power System & Cable
Bulbs replaced throughout boat where possible for LEDs (2020)

SilentWind Pro Wind Generator

SilentWind Pro Wind Generator

One of two 160 watt solar panels, can be tilted upright to face the sun

One of two 160 watt solar panels, can be tilted upright to face the sun

Additional Equipment

Saloon Clock & Barometer
Fusion Stereo System
2 x 6kg Calor Gas Cylinders
Insulated backstay (Asterie previously had an SSB onboard)
Watermaker thru-hull in place (Asterie previously had a watermaker onboard – there is no watermaker onboard now)

How Did We Get Ashore?

With our dinghy and outboard combo! With our previous boat, we had a much smaller dinghy and only a 2.5hp outboard. This was a serious upgrade for us and it allowed us to anchor a fair distance away from towns, but we were still able to get ashore for supplies if needed.

Yamaha F9.9J Outboard (2020)
12 litre Fuel Tank (2020)
Honwave T32-IE Tender (2020)
Honda wheel kit fitted by dealer (2020)
2 Paddles (2020)
Seat (2020)
Carry Case (2020)
Dinghy Anchor with rode and bag (2020)

The Honwave / Yamaha combo at speed!

The Honwave / Yamaha combo at speed!

Construction

The hull and deck are GRP, built under the supervision of Lloyd’s Register of Shipping. A Lloyd’s certificate is supplied with each boat. Laminate construction of hull: NGA-gelcoat and isophthalic polyester is used. Hand lay-up method, insulated above the waterline with a PVC-foam against heat and cold. Strong under-floor reinforcements.

Lead keel with reinforcements bolted on with 15 stainless steel bolts.

Skeg hung rudder mounted for sensitive rudder feel.

Strong engine foundations of GRP for effective sound insulation.

Deck and coachroof areas and also the cockpit are of sandwich construction, solid in parts and laminated to the hull.

The cockpit is protected by a strong windscreen with a fixed roof (dog house model).

Teak decks, cockpit teak decking, seats and table with folding leaves.

Additional stainless steel granny bars on deck.

All interior woodwork is a light mahogany with a matt silk finish.

The flooring is finished in a varnished teak with inlaid holly stripes. Protected by carpet from the chart table area forwards (apart from in the galley and forward heads).

Long fin keel

Long fin keel

Skeg hung rudder

Skeg hung rudder

View of Asterie from the top of the mast!

View from the top of the mast!

Accommodation

The cockpit is a generous size providing seating for 6-7 persons, wheel steering with a folding teak leafed table.

The cockpit. Deep, protected and secure

The cockpit: deep, protected and secure

The companionway steps lead down into the saloon.

The saloon has an L-shaped sofa (which converts into a generous double berth) to port and a straight sofa to starboard (which converts into a generous single / small double to starboard).

There is generous storage space above and below. There is a large fixed table with two folding leaves and central bottle storage. (This area will easily accommodate 6 people for a meal and up to 10 for drinks and snacks.)

Large saloon area. Galley to starboard. Chart table to port

Large saloon area. Galley to starboard. Chart table to port

The galley is on the starboard side and equipped with double stainless steel sinks with pressurised hot and cold water, a Taylor gimballed stove (re-built in 2019) with two gas hob burners, a hob, gas grill and gas oven. Frigomatic 12v fridge in insulated 180 litre icebox. Ample cupboard storage for crockery, cooking pots and pans, cleaning items, drawers and dustbin.

We could cook up some excellent meals with this set-up and regularly cooked from scratch. Put it this way, we did not go hungry while we lived aboard!

Good sized galley with plenty of storage space

Good sized galley with plenty of storage space

Opposite the galley on the port side is a chart table with a chart locker, drawers, an electric switch panel and radio.

Behind the chart table mounted on the wall are the circuit breakers for the electric winches in the cockpit and the mast electric furling system.

Also mounted on the wall is the Victron solar charge controller for the solar panels, the Silentwind wind and solar hybrid charge controller (with space for more solar to be added) and a battery monitor.

Large chart table and the passageway to the aft cabin

Large chart table and the passageway to the aft cabin

There is a passageway leading to the aft cabin which also provides excellent access to the engine bay via large double doors which are removable.

Excellent engine access via the passageway to the aft cabin

Excellent engine access via the passageway to the aft cabin

The aft cabin provides three berths comprising of a double and a single. The cabin headroom is 1.85m.

We had a long shelf along the back wall and also space on the wide windowsills to store items. There was a single wardrobe, two large drawers and three cupboards spread around the cabin, which provided plenty of storage for items. 

Under the berths were the six leisure batteries and two engine batteries.

An escape deck hatch/window (with curtain) floods the room with light.

There are also two dorado vents, two 12v fans, one main ceiling light (with high and low setting), two reading lights on the walls and a CO monitor/alarm in the room.

The saloon and rear cabin are heated by a diesel heater (mounted in the engine room).

Aft cabin (looking towards the stern) - single on the port side, double on the starboard side

Aft cabin (looking towards the stern) - single on the port side, double on the starboard side

Aft cabin looking towards the bow. Ensuite just in front of the starboard bed. Plenty of storage

Aft cabin looking towards the bow. Ensuite just in front of the starboard bed. Plenty of storage

4 of Asterie's 8 batteries (6 for leisure and 2 for the engine)

4 of Asterie's 8 batteries (6 for leisure and 2 for the engine)

The aft cabin also has the luxury of an ensuite heads with separate shower area and an electric marine toilet (2015). It is also equipped with a large china wash basin mounted into the countertop with pressurised hot and cold water.

There is a lot of storage space in the two cupboards below the sink and behind the sliding doors above the sink. A large mirror is mounted on the wall.

The ensuite heads in the aft cabin including separate shower

The ensuite heads in the aft cabin including separate shower

Heading towards the bow, there is a passageway between the forward cabin and saloon which houses a double wardrobe to starboard with a cupboard above and also extra storage space that is open. 

Heading towards the bow, there is a passageway between the forward cabin and saloon which houses a double wardrobe to starboard with a cupboard above and also extra storage space that is open.

Heading towards the bow, there is a passageway between the forward cabin and saloon which houses a double wardrobe to starboard with a cupboard above and also extra storage space that is open.

There is second (main) heads to port opposite the double wardrobe. It has a separate shower cubicle, an electric Jabsco marine head (2013), a china wash basin, a large mirror and two large storage lockers. A third cupboard behind the heads houses the holding tank.

Forward heads. Plenty of storage space. Electric flush for the heads

Forward heads. Plenty of storage space. Electric flush for the heads

Large separate shower in the forward heads

Large separate shower in the forward heads

The forward cabin provides two comfortable berths and there is an infill cushion to allow the bed to become much larger. There is plenty of stowage room below the berths which is accessible via doors below the berths and also from above when the mattresses are lifted. 

There is much more storage above and in front of the berths also in multiple cupboard spaces (x7), two of which have shelves within them.

On the ceiling there is one main light (with high and low settings) and two reading lights are mounted on the walls. An escape deck hatch/window (with curtain) ensures the room is lovely and bright.

The v-berth in the forward cabin. So much storage space in here

The v-berth in the forward cabin. So much storage space in here

History of our 1989 Hallberg-Rassy 42E

Asterie was our home from July 2019 to May 2022. We bought her in Eastbourne on the South Coast of the UK and sailed her back to Falmouth, where we were based at the time as we were waiting for our little girl to be born (Robyn was 5.5 months pregnant at the time we bought her!)

Our ~220 nm journey back was an absolute breeze and we flew back. It would have taken us days in our previous boat but Asterie is a real mile muncher and made light work of the journey – a trait she proved to us over and over during our ownership.

We then sailed to the Isles of Scilly for a mini-break, back to Falmouth for the winter and had a baby(!). It turns out that boats are very well baby-proofed right out the box, but if you want to prepare further, read 'Going Sailing with an Infant Onboard' for 20+ tips. 

In July 2020, we set sail south. Our first passage was across the English Channel to Brest, France, where we then coastal hopped as far as the Morbihan. 

We made the big jump across Biscay from there with the two of us, a nine-month-old baby, and Scrappy (our dog) onboard. We landed in A Coruña, Northern Spain, just under 2.5 days later. 

Sailing around and exploring the Rias of Galicia, including the Cies Islands, was very enjoyable. After that, we sailed to Viana do Castelo, Portugal and continued hopping our way down the coast, encountering the fog that the Western Coast of Europe is well known for. Having radar on board definitely made a massive difference!

Sailing towards some of the Rias of Galicia

Sailing towards some of the Rias of Galicia

We reached the Algarve on the south coast of Portugal in late September 2020 and decided to spend winter 2020/21 in Portimao. We found it to be much warmer and drier than the British winters we were used to!

The season of 2021 began with a sail to the Rio Guadiana, which separates Portugal and Spain. We travelled a fair number of miles inland before heading back out to sea and across to Cadiz in Spain (a beautiful city and definitely worth a visit!)

We then coastal hopped down to La Linea, Spain  / Gibraltar before beginning our journey into the Mediterranean Sea along the Southern Coast of Spain. We got as far as Almerimar before turning around and heading back to Portugal. 

We completed our return journey to Portugal and spent winter 21/22 up the Guadiana River, spending the majority of our time at anchor.

We based ourselves in Alcoutim, Portugal / San Lucar, Spain, up the Guadiana River and had a memorable winter there. Our daughter began nursery during our time there for the first time!

Asterie at anchor (Guadiana River)

Asterie at anchor (Guadiana River)

Asterie is a very high quality boat with fantastic sea-keeping abilities. The tastier the weather gets, the more she digs her heels in and she relishes the chance to have a great sail while keeping us safe and comfortable inside.

We’ve been down below in 50 odd knots of wind yet you’d think there was far less wind outside than there actually was. We haven’t sailed on another boat that has made us feel as safe, secure and comfortable as Asterie has done. 

Why Did You Sell Her?

The only reason we sold Asterie was because having lived and travelled aboard a boat since June 2017 (on this boat and our previous boat, a 1974 Dufour 34), we were ready for a new adventure on land for a little while.

She was an amazing home for us and the first home for our little girl so we were very sad to see her go (and still regret selling her years later!).

Asterie is an excellent, solidly built vessel that proved herself multiple times over and kept us feeling very safe and comfortable on our travels.

She had an excellent amount of storage space throughout – we had so many things stashed away in her lazarettes, lockers and cupboards – you can easily load up and then live off-grid for long periods of time without needing to go back to land on a Hallberg-Rassy 42E. 

During our buyer's survey just before we sold Asterie

During our buyer's survey just before we sold Asterie

Would We Recommend a Hallberg-Rassy 42E as a Family Boat?

Absolutely, 100% yes! 

Asterie was an excellent family home for us for three years, and she allowed us to travel and see our world while we lived onboard. 

She is a very well built boat, and she kept us very safe, even during very rough weather. We encountered a rogue wave once that was half the height of our mast (around 9/10m). She took it in her stride - we were the mentally broken ones - not her!! I honestly believe we'd have had a very different outcome had we been on a different boat. 

If you are considering buying a Hallberg-Rassy 42E, we highly recommend them and hope you have a fantastic time cruising aboard one as we did. 

'Asterie' - our 1989 Hallberg-Rassy 42E at anchor

'Asterie' - our 1989 Hallberg-Rassy 42E at anchor

About the Author

Hey! I’m Robyn - sailor, author, mum, and blogger. I'm fearlessly dedicated to sharing the awesomeness of sailing and travelling around our incredible planet, with your family beside you every sail of the way. Whether you’re a seasoned sailor or have never stepped foot on a boat before, I’m here to guide you every step of the way. WELCOME!

{"email":"Email address invalid","url":"Website address invalid","required":"Required field missing"}

Get this Free E-Book

Make your kid's cruising life as enjoyable as your own by finding them some playmates - download 'How To Find Other Kid Boats' now!

How To Find Other Kid Boats ebook cover image
>